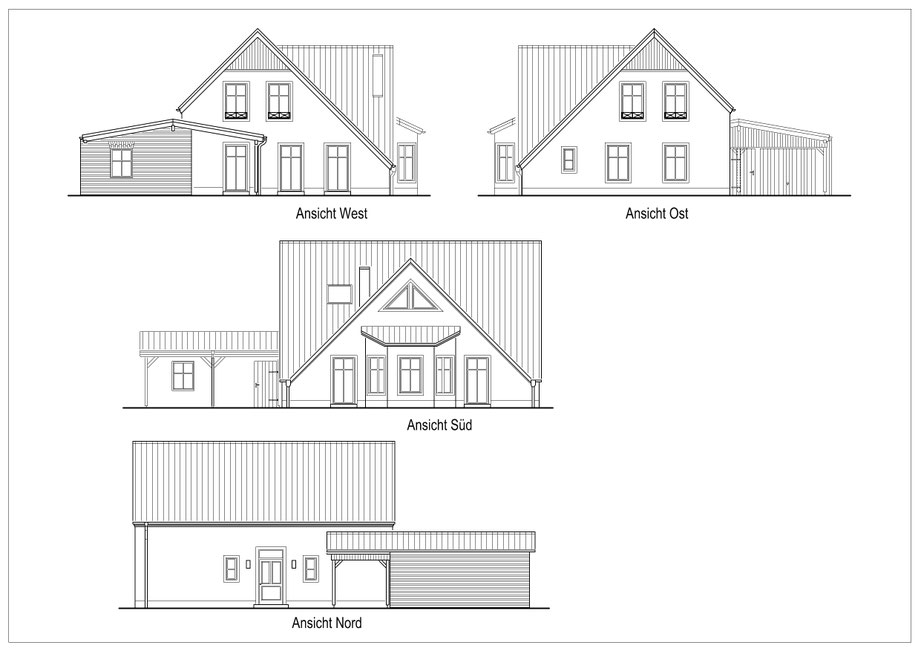
Errichtung eines Wohnhauses im Landhausstil/Nurdach in Vreden
Ort
Realisierung
Gebäudetyp
Leistungen
Vreden
2015
KfW-Effizienzhaus
Planung
Ausschreibungen
Bauleitung
Energieberatung
Ort
Realisierung
Gebäudetyp
Leistungen
Vreden
2015
KfW-Effizienzhaus
Planung
Ausschreibungen
Bauleitung
Energieberatung